Moderne Badstue med Baderom

Eksklusiv badstue med garderoberom – kvalitet, komfort og nordisk design

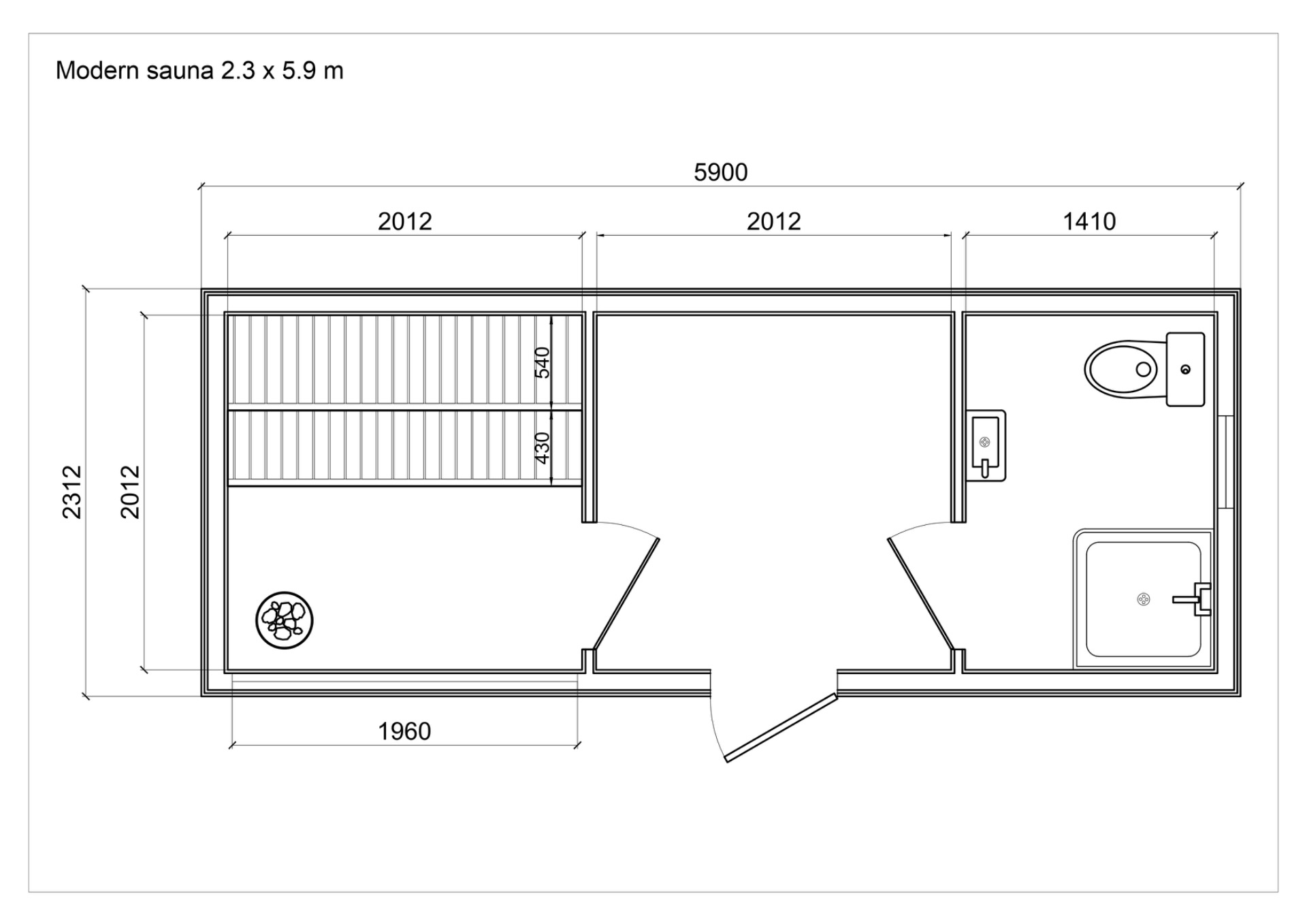
Opplev ekte badstueglede i en moderne og funksjonell badstue, bygget i solide materialer med gjennomtenkte løsninger. Denne modellen kombinerer klassisk håndverk med moderne komfort, og gir deg et privat velværeområde som passer like godt i hagen som på hytta.

Materialvalg og konstruksjon

  • Utvendig kledning: Velg mellom furu eller termotre for et stilrent og robust uttrykk.
  • Garderoberom/bad: Panel i furu eller termotre, gulv i slitesterk gulvfuru.
  • Badstuerom: Svartor/lind eller termopanel, gulv i gulvfuru.
  • Benker: Rette sittebenker i termoosp – behagelige og slitesterke.
  • Beskyttelse: Varmebestandige plater ved varmeovn/ovn for sikker bruk.
  • Skillevegg: Praktisk oppdeling mellom badstue og garderoberom.

Vinduer og dører

  • 1 stort dobbeltglassvindu: 1940 x 1940 mm – gir fantastisk utsikt og lys.
  • 1 lite vindu på badet: 410 x 1150 mm.
  • 1 dobbeltglassdør med trehåndtak til badstuen.
  • 1 tredør til badet.
  • 1 utvendig glassdør med treramme og lås.

Tak og finish

  • Isolerte takpaneler dekket med bitumenbaserte takmembraner for lang levetid.
  • Metallplatefinish for et moderne og holdbart uttrykk.

Kort oppsummert får du:

  • Kombinasjon av badstue og garderoberom/bad.
  • Store panoramavinduer for utsikt og lys.
  • Slitesterke, varmebestandige materialer.
  • Klassisk nordisk design med moderne detaljer.

Dette er ikke bare en badstue – det er et helhetlig velværebygg som gir deg rom for avslapning, rekreasjon og hygge året rundt.

Toalett og dusj og vask er inkludert. 

Elektrisk ovn 8.000kr
Vedovn 10.000kr
Frakt 5.000kr 

 

Personer 6-10

Innvendig areal 11,10 m²

Tre Termoved

Vegg Termovedpanel fra utsiden: 32 x 142 mm Termovedpanel fra innsiden: 19 mm Strukturell fururamme: 45 x 95 mm Steinullisolasjon: 100 mm Isolert veggtykkelse: 164 mm

Gulv Utvendig - DURELIS TG / Fuktbestandig sponplate -12 mm; Furugulvbord fra innsiden: 28 mm; Strukturell fururamme: 45 x 120 mm; Steinullisolasjon: 100 mm; Isolert gulvtykkelse: 158 mm

Saunavindu Dobbeltglass herdet, tonet glass: 1940 x 1940 mm

Dørstørrelse Herdet, tonet glass: 700x2000

Tak OSB utenfra: 10 mm Termopanel innenfra: 19 mm Strukturell furukonstruksjon: 45 x 95 mm Steinullisolasjon: 100 mm Isolert veggtykkelse: 124 mm Dekket med svarte bitumenbaserte takmembraner

 

kr 279 999,00